

Chalet #3 Jacuzzi Junkies
Lodging
Welcome to a stunning luxury 6 bedrooms chalet offering 240 m² of spectacular living space. Located in an ideal peaceful elevated position in Samoëns, yet only 300m from the village. The free ski bus stop is a 4 minutes walk, or it's an easy 12 minutes walk to the Grand Massif Express Gondola.
Modern and contemporary with exceptional finishes, our chalet features a hot tub in the garden, underfloor heating throughout, free Wi-Fi and a 60 m² open-plan living area with floor-to-ceiling windows offering breathtaking mountain views.
Book now to get the early bird price !
Location & Ski
Perfectly situated in the charming alpine village of Samoëns, our chalet offers the ideal base for your mountain adventure.
Samoëns is part of the Grand Massif ski domain, one of France's largest ski areas with 265km of varied slopes.

Rooms
Bedroom 1 - King (Ground floor)
Bedroom 2 - King with Balcony (First floor)
Bedroom 3 - Triple
Bedroom 4 - Twin
Bedroom 5 - Triple Ensuite
Bedroom 6 - Snug Room (Ground floor)
With a TV
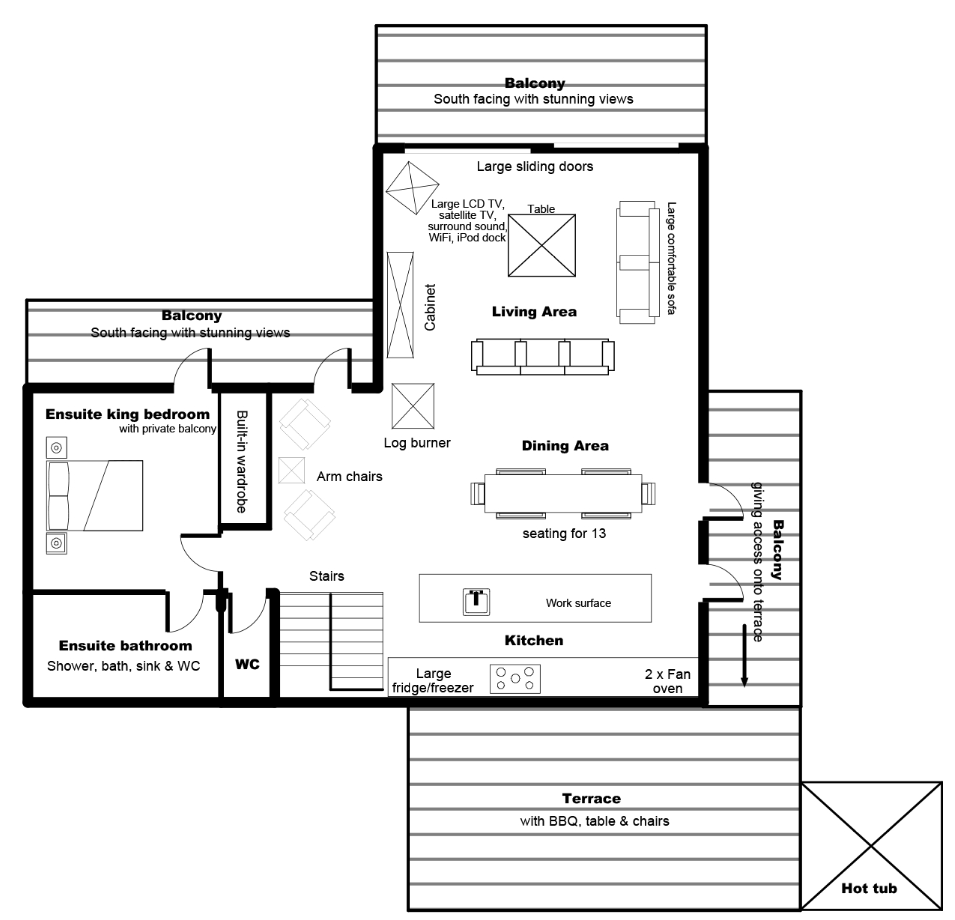
Chalet Floor Plans



Daily Flow
Your typical day at Jacuzzi Junkies — a visual journey from sunrise to starlight
Community Activities
The group decides together on daily adventures! Popular options include: backcountry ski touring, exploring the famous Samoëns Saturday market, snowshoeing excursions through pristine forests, group raclette nights, productive coworking sessions, pool & table football tournaments, philosophical hot tub talks under the stars, day trips to nearby Chamonix or Geneva, and spontaneous mountain adventures. More about our community
Frequently Asked Questions
Explore More
❄️ The Snow
Discover the Grand Massif - France's 4th largest ski domain with 265km of pistes, stunning Alpine views, and ski-in/ski-out access.
💻 The Sync
Work productively from dedicated coworking spaces with high-speed internet, comfortable workstations, and collaboration areas.
🧖 The Spa
Relax and recover in premium wellness facilities including swim spas, jacuzzis, saunas, and massage rooms.
👥 The Community
Join a curated cohort of remote workers, entrepreneurs, and digital nomads who share your values and lifestyle.
🚌 Transportation
Get around car-free with ski-in/ski-out access, free ski buses, pedestrian villages, and shared airport transfers.
🏔️ Villages
Explore authentic Alpine villages with historic architecture, local restaurants, shops, and traditional Savoyard charm.